67 High Street
Cowbridge
Vale of Glamorgan
CF71 7AF
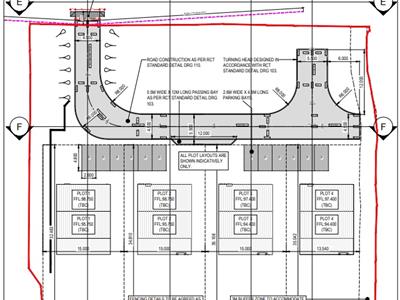
Opportunity to purchase this development site with outline planning permission for four, four bedroom, detached properties, situated off their own private cul de sac. Situated in the popular village of Brynna within close proximity of Pencoed and Llantrisant. The properties to be built are circa 1,800 sq/ft.
The development plot is situated along Brynna Road, the main thoroughfare between Llanharan and Brynna. The plot is ideally located just a short distance (2.8 miles) north of Junction 35 of the M4 motorway, providing easy access to major centres including Bridgend, Cardiff and Swansea.
Outline planning permission has been granted to build four detached plots situated in the heart of Brynna offering excellent scenic views to the rear. The proposed permission offers planning for four dwellings circa 1800 sq/ft. The properties will be situated off of a private road.
Particulars of Application Number 20/1393/13.
The property is sold with and subject to all rights of ways and access wayleaves, water, support, light, drainage and other easements. There will be an expectation for the purchaser to build the roadway in via a new access road.
Quasi easements, restriction orders as they may exist whether mentioned in these sales particulars or otherwise. We also note that there are no footpaths through the development site.
Any plans have been prepared to the foremost accuracy based on land registry plans. Any plans within these particulars are published for administrative purposes only, the accuracy of such plans are not guaranteed.
Rhondda Cynon Taf County Borough Council.
Due to the nature of the site, neither the seller nor agent are responsible for the safety of those viewing. Those viewing the development do so at their own risk.
As part of our obligations under the UK Money Laundering Regulations 2017, Harris & Birt will require any purchaser or tenant to provide proof of identity along with any other supporting documents requested.
Viewings are strictly by appointment only, please contact the sole selling agents Harris & Birt on 01446 771777 or cowbridge@harrisbirt.co.uk .
Travel along the A473 from Talbot Green, heading towards Llanharan. As you pass Llanharan Pharmacy, turn right onto Hillside Avenue and continue along this road eventually entering Brynna Road. The Llanharan Cemetery will be located on your right hand side, the development side is located directly opposite with our Harris & Birt for sale board.
Although these particulars are thought to be materially correct their accuracy cannot be guaranteed and they do not form part of any contract.
Property data and search facilities supplied by www.vebra.com