1A-1B Bank Street
Rawtenstall
Rossendale
Lancashire
BB4 6QS
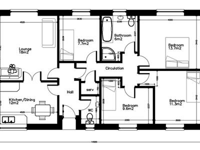
Looking to BUILD YOUR OWN 4 BEDROOM DETACHED BUNGALOW home in a highly sought after residential area, close to open countryside? This ideal plot is a great opportunity to purchase a piece of land in an excellent position with full planning permission already in place - see Rossendale Planning Reference *** 2023/0192 ***
Goodshaw Avenue North, Loveclough, Rossendale, is a fantastic opportunity to acquire a development site with full planning permission already in place, favourably situated and certainly an excellent prospect. Rossendale Planning Reference 2023/0192 applies. The approved property has a single story footprint with 4 bedrooms, but could potentially be easily reconfigured to accommodate a different layout if preferred.
The site is easily accessed directly from the convenient adjacent roadway and would be perfect for any self-builder or developer alike, with potential to create a custom home in a popular position too.
With bus and commuter routes to Manchester, Burnley and beyond close by, the property is also ideally located for the local amenities of Crawshawbooth Village and Rawtenstall Town Centre. Located within reach of a range of local amenities, as well as fabulous open countryside, this property is ideally situated and accessible too.
Planning Permission: Rossendale Reference 2023/0192 Relates
Council Tax: Band n/a - TBC further to assessment
Tenure: Freehold
Stamp Duty: 0% up to £250,000, 5% of the amount between £250,001 & £925,000, 10% of the amount between £925,001 & £1,500,000, 12% of the remaining amount above £1,500,000. For some purchases, an additional 3% surcharge may be payable on properties with a sale price of £40,000 and over. Please call us for any clarification on the new Stamp Duty system or to find out what this means for your purchase.
Unless stated otherwise, these details may be in a draft format subject to approval by the property's vendors. Your attention is drawn to the fact that we have been unable to confirm whether certain items included with this property are in full working order. Any prospective purchaser must satisfy themselves as to the condition of any particular item and no employee of Farrow & Farrow has the authority to make any guarantees in any regard. The dimensions stated have been measured electronically and as such may have a margin of error, nor should they be relied upon for the purchase or placement of furnishings, floor coverings etc. Details provided within these property particulars are subject to potential errors, but have been approved by the vendor(s) and in any event, errors and omissions are excepted. These property details do not in any way, constitute any part of an offer or contract, nor should they be relied upon solely or as a statement of fact. In the event of any structural changes or developments to the property, any prospective purchaser should satisfy themselves that all appropriate approvals from Planning, Building Control etc, have been obtained and complied with.
Although these particulars are thought to be materially correct their accuracy cannot be guaranteed and they do not form part of any contract.
Property data and search facilities supplied by www.vebra.com