Fax: 01450 378 525
28 High Street
Hawick
Scottish Borders
TD9 9EH
A rare opportunity to purchase a substantial plot of land in the Yarrow Valley in an elevated position, overlooking the stunning countryside. The plot, which extends to approximately 0.4 acres, has previously had building warrants to demolish the existing derelict steading and full planning permission for a large detached family home. The area is well known for all outdoor activities including walking, cycling and water sports at nearby St Marys Loch.
Travelling from Selkirk along the Yarrow Valley to St Marys Loch, the plot sits up on the right hand side when exiting the hamlet of Yarrow Feus. Its elevated location provides stunning views over the Yarrow Water and the countryside beyond. Mains water, electricity and Optic Fibre broadband that services other properties in the area are located nearby the plot. The old derelict farmers steading currently sits on the land.
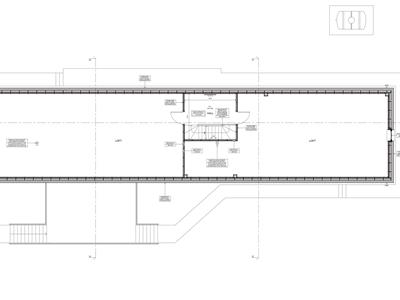
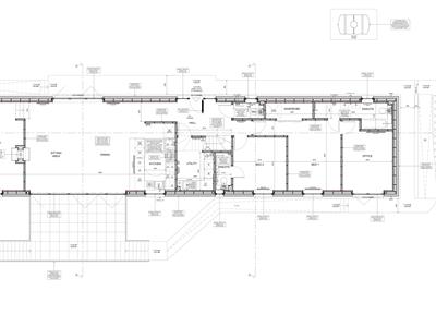
The plot had planning permission granted in November 2020 to demolish the existing steading and build a detached dwelling house. Planning lapsed in November 2023, but can be re instated by application. The proposed property can be viewed on the attached marketing materials, or found in further detail on the SBC Planners website (https://www.scotborders.gov.uk/planning-applications/viewing-planning-application) using reference 20/00024/FUL.
Yarrow Feus is located in the heart of the Yarrow Valley, popular with outdoor pursuits including hiking, cycling and horse riding. The picturesque St Mary Lock is nearby, which is the largest natural loch in the Scottish Borders and popular for waters sports, sailing and fishing. For walkers, St Marys Loch marks the start of the Southern Upland Way. Other highlights in the Valley and nearby, is Bowhill House, Kirkhope Tower and the award winning Hotel and Restaurant 'The Gordon Arms'.
From Selkirk town centre, travel down Westport and continue down past the Rugby Club and turn left signposted St Marys Loch. Travel 10 Miles along the road (A708) to the hamlet of Yarrow Feus and the old steading, marking the plot, sits on the right hand side.
Although these particulars are thought to be materially correct their accuracy cannot be guaranteed and they do not form part of any contract.
Property data and search facilities supplied by www.vebra.com