36 Hide Hill
Berwick-upon-tweed
Northumberland
TD15 1AB
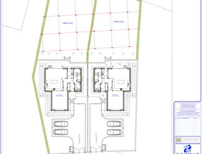
Welcome to Woodburn Drive, Burnmouth, Eyemouth - a charming location just over the border in Scotland. This building plot offers a fantastic opportunity for those looking for a spacious and modern home.
One of the standout features of this property is the ample parking space for 2 vehicles, ensuring convenience for you and your guests. Additionally, the plot of land for sale presents a unique chance to further customise and enhance the property to your liking.
Situated in a serene neighbourhood, this off-plan property allows you to envision and create your dream home from scratch. Although the planning has lapsed, this big building plot offers endless possibilities for those with a vision.
Contact the Berwick Office for more information.
All mains services are connected except for gas.
Council tax band- TBC.
Tenure - Freehold.
Energy rating - TBC.
Plot size - 0.160 acres
OFFICE OPENING HOURS
Monday - Friday 9.00 am - 5.00 pm
Saturday 9.00 am - 12.00 pm
Saturday Viewings 12.00pm - 1.00pm
FIXTURES & FITTINGS
Items described in these particulars are included in the sale, all other items are specifically excluded.
All heating systems and their appliances are untested.
This brochure including photography was prepared in accordance with the sellers’ instructions.
Although these particulars are thought to be materially correct their accuracy cannot be guaranteed and they do not form part of any contract.
Property data and search facilities supplied by www.vebra.com