18 Southernhay West
Exeter
Devon
EX1 1PJ
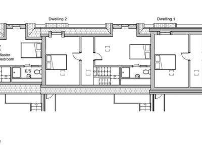
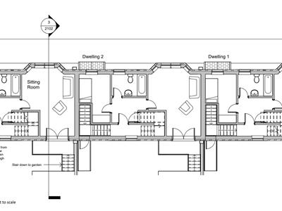
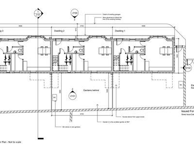
Development site with full planning permission granted for the demolition of existing garage block to construct 3 x three bedroom terraced dwellings (C3 Use Class) with external amenity space, first floor rear balconies, landscaping and associated works.
Toronto Road offers a cul-de-sac position within this highly sought-after and convenient location with great access to the City Centre, the University of Exeter and other local amenities.
Full planning information can be found on the Exeter City Council web site using application 23/0653/FUL.
Full planning information can be found on the Exeter City Council web site using application 23/0653/FUL.
Contact Naomi J Ryan Estate Agents on 01392 215283.
We recommend sellers and/or potential buyers use the services of The Mortgage Quarter. Should you decide to use the services of The Mortgage Quarter you should know that we would expect to receive a referral fee of £200 from them for recommending you to them. You are not under any obligation to use the services and can seek alternative providers of these services. Further information is available on our web site.
We hereby declare that the vendor of this property has an association with Naomi J Ryan Estate Agents.
Although these particulars are thought to be materially correct their accuracy cannot be guaranteed and they do not form part of any contract.
Property data and search facilities supplied by www.vebra.com