7 Langton Place
Bury St. Edmunds
Suffolk
IP33 1NE
This generous-sized building plot backs onto open countryside and occupies a tucked-away setting within the popular and picturesque village of Lawshall.
Full planning consent has been granted for the erection of a detached dwelling and details of the planning consent can be found on the website:
https://planning.baberghmidsuffolk.gov.uk and by searching reference DC/19/04663 or PP-08201471 in the planning section
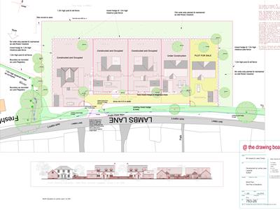
The plot is the last available plot at this location and we have saved the best till last as it enjoys the end position with farmland views to both the side and rear. Out of the total 5 plots, 3 have already been developed as high-specification individual homes. The 4th plot (Listed as plot 2) is currently under construction. (see plan)
As previously mentioned, the plot occupies an idyllic setting, close to the village centre and yet with the benefit of having lovely views over Suffolk countryside. The main infrastructure of the site is already provided with the driveway, electricity and mains drainage in place. The plot measures approximately 47.5 metres by 15.7 metres. In addition to these measurements, the site plans include a 10-metre strip to the rear and an 8-metre strip to the right hand side which will be planted and maintained as a wild flower meadow. The current design for the plot is of 157 sqm (1690 sq ft)
Lawshall, is a lovely village with a strong sense of community. Many of the properties in the village are either period or are of an individual design. Situated around 6 miles from the Historic market town of Bury St Edmunds and around 9 miles north of Sudbury, Lawshall has a number of local amenities including a pre-school, primary school, church, public house, community centre and recreation ground.
So, if you have been searching for a fully serviced good sized plot, in a wonderful semi-rural setting - look no further!
Agents Note: Community Infrastructure Payments will apply.
Directions. Lawshall can be reached from various directions and all roads lead into the village centre. The building plot is located off Lambs Lane which straddles Harrow Green and Bury Road. Once in Lambs Lane, Plot 1 is somewhat hidden from the road, tucked behind a mature hedgerow. You will see 3 large detached houses off a new tarmac driveway. Turn onto the driveway, then right. You will see the plot at the end of the drive.
A superb building plot with far reaching views
Although these particulars are thought to be materially correct their accuracy cannot be guaranteed and they do not form part of any contract.
Property data and search facilities supplied by www.vebra.com