Fax: 01923 859344
299 Watling Street
Radlett
Herts
WD7 7LA
*** PLOT WITH PLANNING PERMISSION IN A PRIME LOCATION IN RADLETT ***
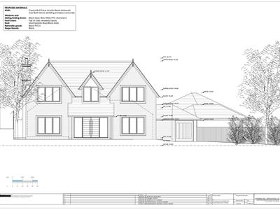
Located on the peaceful and highly desirable Goodyers Avenue in Radlett, this property presents an exceptional opportunity for both immediate living and future development. The existing BUNGALOW comes with planning permission granted for it's demolition and the construction of a spacious 4-bedroom detached house, offering 2,850 sq.ft of living space. A perfect opportunity for those looking to create their dream home, with all necessary permissions already in place.
Set in a prominent position on the road and currently comprising of a master bedroom with fitted wardrobes together with its own ensuite bathroom, two further double bedrooms, which could be used as bedrooms or study/living rooms. A dining area, kitchen and reception room open directly onto the mature and private West facing garden.
To the front there is a large mature garden together with a garage and driveway allowing for parking for three/four cars.
The bungalow is a short walk ( under ten minutes) from Radlett's village centre with its ThamesLink Mainline Station taking you into Central London Kings Cross in under thirty minutes or West Hampstead on the Jubilee Line in under twenty minutes. Radlett village centre has an array of eateries and delis and also the renowned Radlett Centre, with its own auditorium, cafe and library. Various places of worship are also close by.
Council Tax band G/ EPC E/ Mains Drainage / Electric Heating
Although these particulars are thought to be materially correct their accuracy cannot be guaranteed and they do not form part of any contract.
Property data and search facilities supplied by www.vebra.com