75 Gisburn Road
Barrowford
Lancashire
BB9 6DX
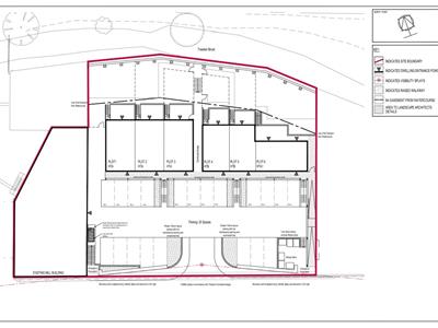
A fantastic opportunity to acquire this former textile mill which was built between 1880 and 1882. Planning permission granted for the conversion of the upper floors and part-ground floor of the existing Mill building to form 8 dwellings / apartments and demolition of the Weaving Shed and erection of 6 dwellings / town houses and associated external works. A substantial amount of work has already been carried out including the clearing of the Mill and demolition of the weaving shed. Further detail including the site GDV and internal layout plans are available upon request.
https://w3w.co/iteration.activity.amounting
Black Carr Mill was built on the initiative of the inhabitants of Trawden as a steam-powered cotton-weaving mill, let on a room and power basis. Subscriptions were sought in 1880 and the mill opened in 1882. The mill, occupying a constricted site beside the Trawden Beck, was stone-built and comprised a three-storey warehouse, office and preparation block with a single-storey weaving shed attached to its rear side with the engine and boiler houses attached in turn to the back wall of the shed. In 1885 a mill extension, in effect a mirror-image of the original mill, was built to the north. The warehouse block was extended to the north in 1888, and a new office block was erected in 1891. 820 looms were in operation by 1912, and a new boiler had to be installed. One of the warehouses was affected by a fire in 1932, and Messrs H W Bannister of Hollin Hall Mill and Forest Shed, Trawden, moved part of their business to Black Carr Mill which was still trading as Hopkinsons (Trawden). Messrs Hopkinson bought the premises off the Trawden Mill Company in 1948, and in 1969 William Baird and Company, also known as Bairdtex, took over. The mill closed in 1975, but was known to have been occupied by Victoria Forge (Nelson) Ltd. Part of the original weaving shed was demolished and redeveloped in 1990. Archaeological building recording was carried out by S Haigh in February 2002 prior to the conversion of two floors to residential use
Trawden, nestled in the rolling hills of Lancashire's countryside, embodies the essence of rural tranquility and community warmth. Living in Trawden offers a peaceful escape from the hustle and bustle of city life, where residents can immerse themselves in the beauty of nature and the charm of village living. The village exudes a timeless appeal with its picturesque streets, historic stone buildings, and welcoming locals who embody a strong sense of community spirit. Trawden boasts a range of amenities, including traditional pubs, and scenic walking trails, ensuring that residents have everything they need right at their doorstep. Nature enthusiasts will find themselves surrounded by breathtaking landscapes, with the nearby Pendle Hill offering stunning views and endless opportunities for outdoor exploration. For those seeking a taste of urban excitement, the nearby towns of Colne and Nelson provide a range of shopping, dining, and entertainment options. With its idyllic setting and close-knit community atmosphere, Trawden offers the perfect blend of rural charm and modern convenience, making it a truly special place to call home.
Unless stated otherwise, these details may be in a draft format subject to approval by the property's vendors. Your attention is drawn to the fact that we have been unable to confirm whether certain items included with this property are in full working order. Any prospective purchaser must satisfy themselves as to the condition of any particular item and no employee of Hilton & Horsfall has the authority to make any guarantees in any regard. The dimensions stated have been measured electronically and as such may have a margin of error, nor should they be relied upon for the purchase or placement of furnishings, floor coverings etc. Details provided within these property particulars are subject to potential errors, but have been approved by the vendor(s) and in any event, errors and omissions are excepted. These property details do not in any way, constitute any part of an offer or contract, nor should they be relied upon solely or as a statement of fact. In the event of any structural changes or developments to the property, any prospective purchaser should satisfy themselves that all appropriate approvals from Planning, Building Control etc, have been obtained and complied with.
You may download, store and use the material for your own personal use and research. You may not republish, retransmit, redistribute or otherwise make the material available to any party or make the same available on any website, online service or bulletin board of your own or of any other party or make the same available in hard copy or in any other media without the website owner's express prior written consent. The website owner's copyright must remain on all reproductions of material taken from this website. www.hilton-horsfall.co.uk
Black Carr Mill was built on the initiative of the inhabitants of Trawden as a steam- powered cotton-weaving mill, let on a room and power basis. Subscriptions were sought in 1880 and the mill opened in 1882. The mill, occupying a constricted site beside the Trawden Beck, was stone-built and comprised a three-storey warehouse and yarn preparation block with a single-storey weaving shed attached to its rear with the engine and boiler houses attached in turn to the back wall of the shed. In 1885 a mill extension, in effect a mirror-image of the original mill but utilising the existing but no doubt enhanced power source, was built to the north. The warehouse block is three storied, with a two-storey extension and added two-storey office block, and the weaving shed is single storied. The mill closed in the late 20th century and the original weaving shed was demolished.
Although these particulars are thought to be materially correct their accuracy cannot be guaranteed and they do not form part of any contract.
Property data and search facilities supplied by www.vebra.com