Fax: 01437 762203
12 Victoria Place
Haverfordwest
Pembrokeshire
SA61 2LP
An opportunity to purchase the last available Freehold building plot on an established rural residential development, within 1.5 miles of the historic Roch Castle, and less than 4 miles from the award winning long sandy beach at Newgale.
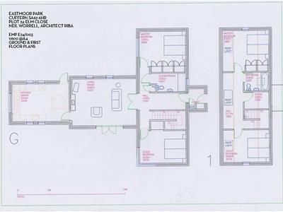
The permission is for a four bedroom, two bathroom dormer bungalow, with detached garage, in keeping with the other properties on the development (no substantive changes would be permitted to the exterior appearance)
The level plot measures 70'1" x 92'4" plus driveway of 76', and services (electricity, water, lpg gas, drainage) are available nearby for the buyer to connect to.
The estate is served by a tarmac private road, maintained by the management company..
We respectfully request that you contact our offices prior to viewing this property internally or externally.
The Pembrokeshire Coastline is close by and within easy reach are the beaches and coves of Newgale, Pen-Y-Cwm, Nolton Haven, Broad Haven, Druidstone Haven. The coastal path provides opportunities for many enjoyable walks along the stunning Pembrokeshire Coastline, an area of outstanding natural beauty. The Cathedral City of St Davids lies to the North West, and the county town of Haverfordwest with its many facilities and amenities is approximately 6 miles to the South. The nearby village of Roch has a post office/shop, public house, primary school and community hall.
The Pembrokeshire Coastline is close by and within easy reach are the beaches and coves of Newgale, Pen-Y-Cwm, Nolton Haven, Broad Haven, Druidstone Haven. The coastal path provides oppor
VIEWING: By appointment only via the Agents.
TENURE: We are advised Freehold
SERVICES: We have not checked or tested any of the services or appliances at the property.
TAX: Band ' ' - N/A
AGENTS NOTE: The adjacent plots are allocated to have two pairs of semi-detached affordable properties built on them.
ADR/RJD/04/22/DRAFT These are Draft details and should not be relied on. Please request an approved copy from our office before booking a viewing.
FACEBOOK & TWITTER
Be sure to follow us on Twitter: @ WWProps
https://www.facebook.com/westwalesproperties/
Although these particulars are thought to be materially correct their accuracy cannot be guaranteed and they do not form part of any contract.
Property data and search facilities supplied by www.vebra.com