Fax: 01450 378 525
28 High Street
Hawick
Scottish Borders
TD9 9EH
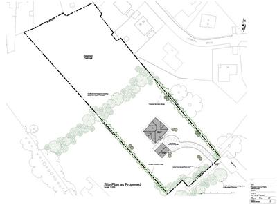
We are delighted to bring to market this large building plot of approximately 1.6 Acres, located in an elevated position at the top of Leaburn Drive in Hawick. The site benefits from stunning views over the town and surrounding countryside and is available for sale with full planning permission to construct a detached family home, comprising of 4 bedrooms, sitting room, open plan family kitchen/dining and sitting room with generous garden grounds and large paddock, ideal for a variety of uses including equestrian.
Heading out from Hawick town centre along Weensland Road (A698), take the second right on to Leaburn Drive. Carry on all the way up the hill until the road ends. The plot sits straight ahead looking back over the town and Scottish Border hills.
Full planning information can be found on the SBC website (https://eplanning.scotborders.gov.uk/online-applications/) Using Planning Reference Number
22/00943/FUL
Planning was approved February 2023.
Mains water, drainage, gas and electricity is located nearby.
Although these particulars are thought to be materially correct their accuracy cannot be guaranteed and they do not form part of any contract.
Property data and search facilities supplied by www.vebra.com