9 Waterloo Street
Clifton
Bristol
Avon
BS8 4BT
Hollis Morgan – A Freehold DETACHED FORMER CARE HOME ( 3639 Sq Ft ) with PLANNING GRANTED to convert to 3 RESI DWELLINGS or would suit HMO stc.
ADDRESS | 1-3 Old Wells Road, Shepton Mallet, Somerset BA4 5XN
A Freehold pair of semi-detached houses ( circa 1970 ) which were previously converted to create one large dwelling ( 3639 Sq Ft ) which was subsequently converted for use by 8 residents with Learning Disabilities in 1987, (Planning Application 076353/002) and then had a single storey extension with 2 further bedrooms built in 1997 (Planning Application 076353/008).
Most recently used as an 8-bedroom care home providing respite care – vacant since 2019.
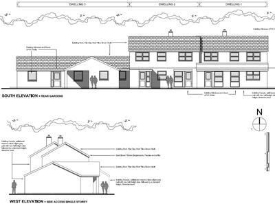
The structure of 1-3 Old Wells Road is of traditional brick and block, cavity wall construction with a mixture of uPVC double glazed windows on the houses and timber double glazed on the single-story extension; and uPVC rear and timber front doors.
There is one communal boiler installed in June 2018 providing heating and hot water to all parts of the building.
There is emergency lighting, fire alarm and warden call systems fitted.
Sold with vacant possession.
Tenure - Freehold
Council Tax - C
EPC - C
Utilities, Rights & Restrictions - Please refer to the Legal Pack
Flood Risk - Please refer to the Legal Pack
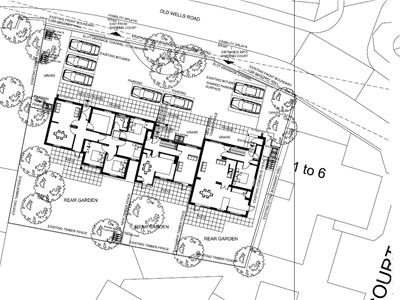
RESIDENTIAL DEVELOPMENT | 3 DWELLINGS
Current C2 usage but planning has been granted ( 2020/2028/FUL ) to convert the property into the following residential scheme.
5-bedroom, 8-person house with a total floor space of 131m² with 216m² of total outside space with 82m² at the back in a private garden space.
4-bedroom, 6-person house with a total floor space of 96m² 183m² of total outside space with 89m² at the back in a private garden space.
3-bedroom 6-person bungalow with a total floor space of 108m² 429m² of total outside space with 200m² at the back in a private garden space.
C2 | COMMERCIAL | HMO
The property would suit continued use as C2 or similar commercial activity or HMO subject to consents.
Reference2020/2028/FUL
Alternative ReferencePP-08813966
Application ReceivedFri 09 Oct 2020
Application ValidatedMon 02 Nov 2020
Address1-3 Old Wells Road Shepton Mallet BA4 5XN
ProposalConversion of an existing Care Home (C2) into three dwellings (C3), Including associated external works.
StatusDecided
DecisionApproval
Decision Issued DateMon 13 Jun 2022
Appeal StatusUnknown
Appeal DecisionNot Available
The ground floor of the 5-bedroom 8-person dwelling consists of a large open plan lounge connected to a kitchen/diner. This provide a significant area for the living room/reception spaces. Adjoining to the lounge is the entrance hall that connects a double bedroom on the right and a WC on the left of the ground floor.
The first-floor landing adjoins to four separate bedrooms, a bathroom, and a cupboard. Two of the double and one of the single bedrooms are sufficiently sized, the new single bedroom is small, but provides an additional space for the occasional use as a bedroom, that can also be used as a study or alike space.
The layout for dwelling 2 originally was identical to dwelling 1, however dwelling 1 has had extensions at the rear, which has significantly increased the area.
The ground floor consists of a hall which connects to the combined kitchen/dining room and separate lounge. All the spaces are suitably and sufficiently sized for the size of the dwelling. The hall also contains the stair to the first-floor bedrooms
The first-floor landing adjoins to four separate bedrooms, a bathroom, and a cupboard. Two of the double and one of the single bedrooms are sufficiently sized, the new single bedroom is small, but provides an additional space for the occasional use as a bedroom, that can also be used as a study or alike space
The accommodation of the ground floor has been organised with the reception rooms close to the new entrance doors. Which have been positioned on the east side, where the building was extended in the 1997. The area for the reception rooms are a good size.
The three double bedrooms, all of a good size are situated at the rear and front of the proposed new bungalow, with a bathroom in the existing space, slightly altered in size. An existing wet room has been altered to accommodate a second shower room.
The bungalow is proposed to be accessible and suitable equipped to accommodate this requirement.
The historic market town of Shepton Mallet is located in the Mendip district of Somerset, five miles east of Wells, England's smallest city. Both the City of Bristol and the picturesque City of Bath, a World Heritage Site, are located just 18 miles away and easily accessible. Shepton Mallet itself offers a range of local amenities and shopping facilities including a large supermarket, leisure centre, lido with fitness centre, a choice of pubs and restaurants, dentists and doctors, a Grade I Listed church and both primary and secondary state schools. There are also many highly-regarded independent schools (Prep & Senior) within easy reach, such as All Hallows Prep School, Downside School, Wells Cathedral School and Millfield School. For those travelling by train, Castle Cary station (which has direct services to London Paddington) is situated only six miles away.
Hollis Morgan endeavour to make our sales details clear, accurate and reliable in line with the Consumer Protection from Unfair Trading Regulations 2008 but they should not be relied on as statements or representations of fact, and they do not constitute any part of an offer or contract. All Hollis Morgan references to planning, tenants, boundaries, potential development, tenure etc is to be superseded by the information contained in the legal pack. It should not be assumed that this property has all the necessary Planning, Building Regulation, or other consents. Any services, appliances and heating system(s) listed have not been checked or tested. Please note that in some instances the photographs may have been taken using a wide-angle lens. The seller does not make any representation or give any warranty in relation to the property, and we have no authority to do so on behalf of the seller.
Although these particulars are thought to be materially correct their accuracy cannot be guaranteed and they do not form part of any contract.
Property data and search facilities supplied by www.vebra.com