Fax: +44 (0)1922 459924
Email: enquiries@chrisfoster.co.uk
6-8 Beacon Buildings, Leighswood Road
Aldridge
West Midlands
WS9 8AA
DEVELOPMENT OPPORTUNITY
** PLEASE NOTE PLOT HAS BEEN EXTENDED FROM PLANS ONLINE TO PROVIDE LARGER GARDEN**
An excellent opportunity has arisen to acquire a superb plot of land to build a dream home in an outstanding location close to green belt countryside yet within easy reach of local amenities.
Planning permission has been granted as follows:
WALSALL PLANNING REFERENCE: 21/1555
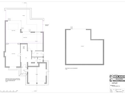
For the construction of an individually designed 5 bedroom detached dwelling extending to 450 square meters.
NOTE: Purchaser to be responsible for payment of the selling agents fees - 1.5% of the purchase price realised, exclusive of VAT. Payable on exchange of contracts.
Chris Foster & Daughter are delighted to offer this exciting opportunity for the chance to acquire a superb plot of land for the erection of a dream home in this highly sought after location close to green belt countryside yet remaining within easy reach of local amenities.
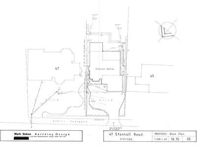
Full planning permission is granted at land adjacent to 47 Stonnall Road, Aldridge for the erection of a truly outstanding, individually designed 5 bedroom detached dwelling, extending to 450 square meters of four levels.
Basement - 112 sq m
Ground Floor (excluding garage) - 138 sq m
Garage - 30 sq m
First Floor - 110 sq m
Second Floor - 60 sq m
The plot sits in a desirable location within easy reach of Aldridge village centre, whilst main centre shopping is available at Lichfield, Walsall and Sutton Coldfield. Aldridge is splendidly served with a range of good schools including Aldridge School, St Francis of Assisi Catholic Technology College and the highly regarded Queen Mary’s Grammar school for boys and High school for girls available at Walsall.
The area is well served for leisure facilities with Oak Park Leisure Centre in Walsall Wood, cricket club behind the church at The Green, Aldridge and Druids Heath Golf Club off Stonnall Road and is extremely accessible to all main centres of the West Midlands conurbation with the A5 Trunk and M6 Toll Roads within 3 miles giving further access to the M6, M5, M42 and M54 motorways.
Although these particulars are thought to be materially correct their accuracy cannot be guaranteed and they do not form part of any contract.
Property data and search facilities supplied by www.vebra.com