3 Bridge Street
Strathaven
ML10 6AN
A wonderful opportunity to purchase this level plot on a serviced site, which has previously had planning permission to build a large two storey detached villa.
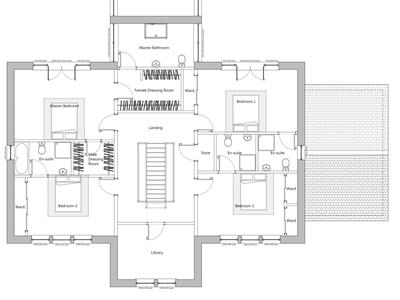
The site is set within an exclusive and desirable gated development of 16 individual homes which is set on the periphery of Strathaven and enjoys lovely country views over the adjacent farmland. The proposed home will extend to circa 4187 sq ft of living space with large open plan living along with a private lounge, games room, utility room, a library/5th bedroom, his and hers dressing rooms and four en-suites. A detached double garage would have living/home office space above it with a shower room.
Floors farm is located off Stonehouse Road behind electric gates and is only a short distance from the amenities of Strathaven. The town of Strathaven is much admired and offers an excellent mix of shopping facilities and sports facilities including swimming baths, bowling clubs, golf courses, public parks and country walks. The area is highly regarded for its schooling whilst for those commuting, there are excellent road links to the surrounding towns which include East Kilbride, Hamilton and also links to the M74 motorway which connects the M8 motorway to Glasgow and Edinburgh.
A wonderful opportunity to purchase this level plot which has planning permissions to build a large two storey detached villa.
Although these particulars are thought to be materially correct their accuracy cannot be guaranteed and they do not form part of any contract.
Property data and search facilities supplied by www.vebra.com