Bonds Corner House
Fore Street
Chulmleigh
Devon
EX18 7BR
An exciting opportunity to purchase a TWO PROPERTY SITE in the centre of Chulmleigh with planning permission to create a DETACHED THREE BEDROOM HOUSE and to convert a TWO BEDROOM MEWS STYLE COTTAGE both with OFF-ROAD PARKING and AMENITY SPACE.
Chulmleigh is a small but busy town set in the heart of rural Devon. It is the centre for an active and friendly community and offers a good range of local shops including a butcher, bakery, dairy, newsagent, florists, hairdressers etc, along with the excellent Chulmleigh Academy offering schooling from the ages of 3 to 16 years of age, health centre, dental surgery, Post Office, churches, library, two public houses and a community run Sports Centre and a short 18 hole golf course. The market town of South Molton to the north and Crediton to the south both offer a more comprehensive range of facilities and the local railway station at Eggesford, 2 miles, provides a rail link between Exeter and Barnstaple. Road link is via the A377 or the North Devon Link Road, which can easily be accessed at South Molton. Barnstaple, North Devon's regional centre, and the Cathedral and University city of Exeter both offer the wide range of shopping, amenities and facilities one would expect from the county's principal town and city. Tiverton, the M5 motorway at Junction 27 and Tiverton Parkway station, which provides a fast Intercity rail link to London Paddington, are both approximately forty-five minutes drive. There is also an international airport at Exeter.
There are excellent recreational and sporting facilities in the area with a range of Leisure Centres at South Molton, Tiverton, Crediton and Barnstaple, near-by tennis courts and clubs, local rugby, football and cricket clubs, fishing in the rivers Taw and Torridge, further near-by golf courses at Libbaton, High Bullen and Down St Mary, excellent walking and riding in all directions, racecourses at Haldon Exeter and Newton Abbot, and sailing and watersports on North Devons scenic and rugged coastline, being approximately three-quarters of an hours drive.
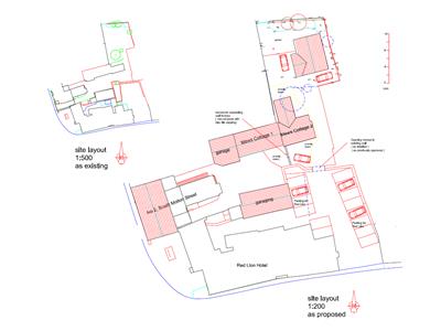
An opportunity to purchase a two plot site in the centre of Chulmleigh on land behind the Red Lion and 2 South Molton Street. North Devon District Council have recently granted planning permission on Application Number 78782 to build a detached three bedroom house and to convert a former workshop into a two bedroom mews style cottage both with parking and garden/amenity land. It is proposed that a new access be created through the wall in the Red Lion car park at the buyers expense. There is also a proportionate amount (2/5th's) to pay towards the Section 106 Agreement which totals £7005.60
A copy of the Planning Permission for the Development and the associated Plans are drawings are available from The Keenor Estate Agent office on request or can be viewed on the North Devon District Council Planning Portal.
The property is being sold freehold
Investigations have not been made as to the availability or otherwise of mains electricity, water or drainage, although the services are believed to be nearby.
Strictly by appointment through the agent. Out of Hours Please Call 01769 580024
Although these particulars are thought to be materially correct their accuracy cannot be guaranteed and they do not form part of any contract.
Property data and search facilities supplied by www.vebra.com