1 Bishop Croft, High Street
Henfield
West Sussex
BN5 9DA
A UNIQUE OPPORTUNITY to Acquire a BUILDING PLOT WITH PLANNING PERMISSION to Build a TWO BEDROOM DETACHED DWELLING, on the North Side of Henfield Village Close to Local Amenities and Country Walks.
Henfield village offers local amenities including shopping facilities, village hall, library, health centre, churches, primary school and sports centre. A bus service passes through the village to the town centres of Horsham and Brighton offering more comprehensive shopping and leisure facilities. The nearest mainline stations are at Hassocks, Burgess Hill, Horsham, Haywards Heath and Shoreham-by-Sea. Crawley, Gatwick Airport and London are accessible via the A23/M23.
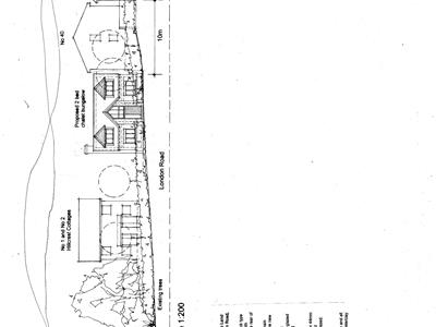
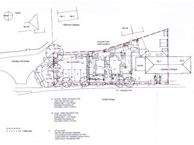
Planning permission has been granted by Horsham District Council (Planning Ref DC/25/1285) for a two bed detached dwelling. The accommodation is arranged over two floors comprising, entrance, entrance hall, cloakroom, sitting room with chimney, open plan kitchen/dining room and utility room. First floor two bedrooms and family bathroom. There is also a possibility of creating a third bedroom subject to planning permission.
Outside there are two allocated parking spaces and front, side and rear garden.
The property has to have installed two water harvesting tanks and service connections which would be liable to be installed by the incoming purchaser.
Agents Note - All viewings will be by appointment through Stevens Estate Agents.
The CIL payment to Horsham District Council will be paid by the purchaser on the start of development.
Although every effort has been taken in the production of these particulars, prospective purchasers should note:
1. All measurements are approximate. 2. Services to the property, appliances and fittings included in the sale are believed to be in working order (although they may have not been checked). 3. Prospective purchasers are advised to arrange their own tests and/or survey before proceeding with the purchase. 4. The agent has not checked the deeds to verify the boundaries. Intending purchasers should satisfy themselves via their solicitor as to the actual boundaries of the property.
Although these particulars are thought to be materially correct their accuracy cannot be guaranteed and they do not form part of any contract.
Property data and search facilities supplied by www.vebra.com