This site, in the attractive village of Caston, approximately 18 miles south west of Norwich and 7 miles north west of Attleborough has good access to the A11 tech corridor. The site is generally level and ready for development shortly, subject to the approval of all reserved matters. Offering planning for five dwellings on generous plot sizes, adjacent to the primary school and for sale by private treaty.
The subject property is a well proportioned development site with access straight from the street. It is laid to grass, and is level
Reserved matters were approved on 28th September 2022 (3PL/2021/0223/D)
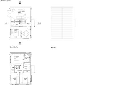
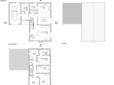
The original consent was for the development of 5 detached dwellings.
It also incorporates the development of a car park for use by the primary school on land to the front. The intention is that the primary school will take over the maintenance of the car park.
We understand the residential units will have approximate gross internal areas between 990SqFt and 1485SqFt.
Although initial investigations were undertaken during the planning application process, prospective purchasers are advised to ensure the availability of adequate services at the site by contacting the relevant utility providers.
The freehold interest in the property is available for sale with offers in the region o £525,000 exclusive
Each party is to bear their own costs
Our client reserves the right to charge VAT in line with current legislation
Although these particulars are thought to be materially correct their accuracy cannot be guaranteed and they do not form part of any contract.
Property data and search facilities supplied by www.vebra.com