Lock House, St Julian Street
Tenby
Dyfed
SA70 7AS
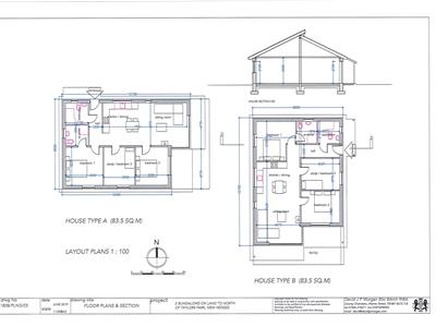
A rare opportunity to buy a *building plot* in the centre of New Hedges village with full detailed planning permission in place to build a modern/contemporary style three-bedroom bungalow.
The style of the build can be modified subject to the necessary planning considerations.
Water, electricity, gas, mains drainage and BT are all on site ready for connection.
The plot is approached from Cross Park and has onsite parking for 3-4 cars and garden space surrounding the bungalow, with close boarded fence and natural hedgerow boundaries.
An attractive plot within the village, it is equidistant from the picturesque holiday resorts of Tenby and Saundersfoot.
Plot A is a building plot that has full detailed planning permission. All room dimensions are approximate and all photographs shown are of Plot B (already purchased and developed) to use as reference, as it is the same design as the planning that is in place for Plot A.
The services are in place ready for connection. The road has been trenched and the water pipes are ready for connection.
Mains drainage connection on site.
Mains Electricity on site.
Mains Gas on site.
B.T on site.
Plans have been prepared and will be available to the purchaser for the submission of Building Regulations, as at May 2022. There is full detailed SUDS approval.
25'9 x 13'4
6'9 x 6'2
11'9 x 11'5
6'9 x 6'2
11'9 x 10'0
11'9 x 9'5
Although these particulars are thought to be materially correct their accuracy cannot be guaranteed and they do not form part of any contract.
Property data and search facilities supplied by www.vebra.com