58 Micklegate
York
North Yorkshire
YO1 6LF
Fold Court, located on the Buttercrambe Estate near Stamford Bridge, is a series of farm buildings that have been converted into comfortable and affordable office and workshop space. The facilities allow occupiers to work effectively in a rural environment with outstanding views of the surrounding countryside. The conversion has maintained the look and feel of the original Fold Yard since its restoration.
The Fold Court Development is situated in Buttercrambe village within Ryedale District and easy reach of the following:
Stamford Bridge - 2 miles
York - 10 miles
A64 Ring Road - 6 miles
Malton - 9 Miles
A1/M1 Link Road - 24 miles
Leeds Bradford Airport - 38 miles
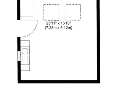
The unit benefits from internal partitions to create 3 rooms; Kitchen sink on 2000mm base unit, together with a wall mounted electric water heater. 2 windows and 2 skylights make it naturally well lit. The approximate Net Internal Floor areas are as follows -
Office 5122 x 7277mm approx = 35.5 SQM(NET) = 382 SQFT(NET)
£400pcm depending on works needed and type of use.
The unit benefits from mains water, mains electric to 12 power sockets. We understand up to 80mbps broadband is available. 2 telephone connection points. 2 electric wall heaters. 6 overhead strip lights.
An air source heat pump and radiators are connected.
The rear wall and up to dado level on one internal wall are dry lined and insulated.
Currently it has use of a WC that is shared with other small units but a separate WC could be created if required. Please note a higher rent would be needed to justify this.
The tenant is responsible for all business rates.
Unit 3b, Fold Court: RATEABLE VALUE - £1375, RATES PAYABLE - TBC
Ryedale District Council can be contacted on 01653 600666. Tenants may be able to claim Small Business Relief, please use www.ryedale.gov.uk for further information.
GMV Winn & Co.
Aldby Park
Buttercrambe
YORK
YO41 1XU
Tel - 01759 371983
Email - george@winndarley.net
The incoming tenant is responsible for a contribution towards the reasonable costs incurred in the transaction - £350 + VAT.
*Rent paid by bankers order on 5th of each calendar month in advance.
*Deposit paid equivalent to 2 months rent.
*No assigning or subletting.
*Service charge is 5% of rent.
*Signs erected only with landlord's consent (must be black background with gold lettering, tenant to choose wording, font and, if desired, logo) and cost between £50 and £100.
*Tenant to keep the unit in good repair.
*Landlord pays insurance premium to cover the building. Tenant pays any excess and insures own contents.
Aldby Park, Buttercrambe, a Georgian Mansion built by the Darley family in 1726, with historic garden and grounds can be made available for meetings etc. by special negotiation. This facility is only offered to tenants of the Buttercrambe Estate. The principle reception rooms (and the garden in summer) make an excellent setting for corporate hospitality or smaller seminars, and are only 450 metres from the offices.
Although these particulars are thought to be materially correct their accuracy cannot be guaranteed and they do not form part of any contract.
Property data and search facilities supplied by www.vebra.com