9 Waterloo Street
Clifton
Bristol
Avon
BS8 4BT
Hollis Morgan NOVEMBER AUCTION - A Freehold DETACHED PERIOD PROPERTY ( 8,000 Sq Ft ) with HUGE POTENTIAL and scope to convert into 8 FLATS and a DETACHED COACH HOUSE subject to consents.
*** SOLD @ HOLLIS MORGAN NOVEMBER AUCTION ***
GUIDE £1.5M +++
SOLD @ £1.775M
LOT NUMBER 7
Wednesday 27th November 2019
All Saints Church Pembroke Road, Clifton, Bristol BS8 2HY
Legal Pack Room and Registration will be open from 18:15
The sale will begin promptly at 19:00
Completion is set for 14 weeks or earlier subject to mutual consent.
On this occasion the vendors will NOT be considering pre auction offers.
Francis Montagu
Bennetts Solicitors
(0)1934 864 953
francis.montagu@bennettlaw.co.uk
Digital Copies of the Online legal pack can be downloaded Free of Charge.
Please visit the Hollis Morgan Website and select the chosen lot from our Current Auction List.
Follow the RED link to "Download Legal Packs" For the first visit you will be required to register simply with your email and a password.
Having set up your account you can download legal packs or if they are not yet available they will automatically be sent to you when we receive them.
You will be automatically updated by email if any new information is added.
There will be a note added to the list to confirm AUCTION PACK NOW COMPLETE when no further information is due to be added.
*** STAY UPDATED *** By registering for the legal pack we can ensure you are kept updated on any changes to this Lot in the build up to the sale.
An imposing Freehold detached period property occupying a prime position on a substantial plot with double driveway and additional detached cottage.
The property has over 8,000 Sq Ft of accommodation arranged over four floors and retains many of the original period features.
Sold with vacant possession.
Redland is amongst the most sought after and coveted locations in the city and remains an incredibly popular suburb. There are excellent amenities on the nearby Whiteladies Road which provide a wide range of supermarkets, shops, restaurants and pubs. A choice of primary and secondary schools are nearby and, in addition, there is excellent access to the City, as well as to Cribbs Causeway and the motorway network. The property is ideally located for both Bristol University and the Bristol Royal Infirmary.
The property is offered with vacant possession and will suit a wide range of potential uses subject to gaining the necessary consents.
LUXURY RESIDENTIAL CONVERSION
The property is ideally suited for a residential conversion and there is a proposed scheme of 8 flats and a detached coach house.
Clearly the size of the building and plot allows for a wide range of possible schemes and combinations - buyers must make their own investigations.
We understand that no planning for a residential scheme has been previously sought.
FAMILY HOME (S)
The property would make a formidable family home in this sought after location with separate annex ideal for business or staff quarters.
Alternatively given the scale of the property buyers may wish to split the property into two more manageable size units.
COMMERCIAL USE
The property previously operated as a successful nursing home and would suit a similar operation.
Alternatively it would make an excellent school, nursery etc
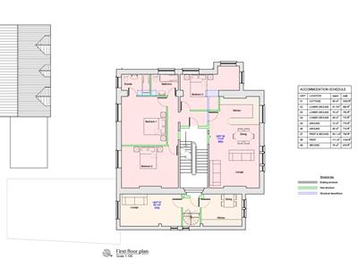
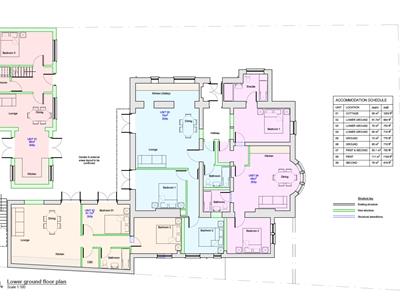
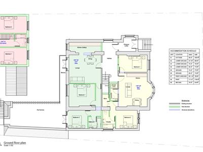
UNIT 1 - 2 Bedroom Coach House - 1033 Sq Ft
UNIT 2 - 2 Bedroom Flat – 664 Sq Ft
UNIT 3 - 2 Bedroom Flat – 753 Sq Ft
UNIT 4 - 2 Bedroom Flat – 710 Sq Ft
UNIT 5 - 2 Bedroom Flat – 775 Sq Ft
UNIT 6 - 2 Bedroom Flat – 710 Sq Ft
UNIT 7 - 2 Bedroom Maisonette – 700 Sq Ft
UNIT 8 - 3 Bedroom Flat – 1194 Sq Ft
UNIT 9 - 2 Bedroom Flat – 818 Sq Ft
Calum Melhuish ( Hollis Morgan New Homes ) has prepared the following GDV schedule for the proposed scheme.
UNIT 1 - £542,000 - £568,000
UNIT 2 - £369,000 - £379,000
UNIT 3 - £380,000 - £390,000
UNIT 4 - £375,000 - £385,000
UNIT 5 - £446,000 - £456,000
UNIT 6 - £416,000 - £427,000
UNIT 7 - £395,000 - £405,000
UNIT 8 - £524,000 - £550,000
UNIT 9 - £424,000 - £435,000
TOTAL - £3,871,000 - £3,995,000
A full copy of the report can be downloaded with the online legal pack.
If you would like to discuss any aspects of the report please contact Calum Melhuish – 0117 973 6565
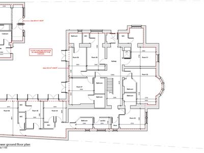
UNIT 1 - 1033 Sq Ft
Coach House arranged over two floors.
Ground Floor
L Shaped Open Plan Living Space
Bathroom
Bedroom 3 / Reception room
First Floor
Bedroom 1
Bedroom 2
Bathroom
UNIT 2 – 664 Sq Ft
Lower Ground Floor
Private Entrance
Open Plan Living Space
Bedroom 1
Bedroom 2
Bathroom
UNIT 3 – 753 Sq Ft
Lower Ground Floor
Semi Open Plan Living Space
Bedroom 1
Bedroom 2
Bathroom
UNIT 4 – 710 Sq Ft
Lower Ground Floor
Open Plan Living Space
Bedroom 1
En Suite
Bedroom 2
Bathroom
UNIT 5 – 775 Sq Ft
Ground Floor
Lower Ground Floor
Semi Open Plan Living Space
Bedroom 1
Bedroom 2
Bathroom
UNIT 6 – 710 Sq Ft
Ground Floor
Lower Ground Floor
Open Plan Living Space
Bedroom 1
En Suite
Bedroom 2
Shower Room
Store
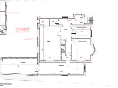
UNIT 7 – 700 Sq Ft
First & Second Floor Maisonette
First floor
Lounge
Kitchen Diner
Second Floor
Bedroom 1
Bedroom 2
Bathroom
UNIT 8 – 1194 Sq Ft
First Floor
Open Plan Living Space
Bedroom 1
En Suite
Bedroom 2
Bedroom 3
Bathroom
UNIT 9 – 818 Sq Ft
Second Floor
Open Plan Living Space
Bedroom 1
En Suite
Bedroom 2
Bathroom
Local Lettings Experts Clifton Rentals say...
An exciting opportunity to convert this large previous residential care home. The proposed scheme creates 9 properties (Coach House, 6 x two bed properties 2x Three bed properties) Due to location all properties would attract professional couple and sharers.
Proposed properties (subject to planning)
Plot 1: Coach House – 2/3-bedroom house with garden – Rent £1600 PCM
Plot 2: 2 Bed 1 bathroom and garden – Rent £1300 PCM
Plot 3: 2 Bed 1 bathroom and garden – Rent £1300 PCM
Plot 4: 2 Bed 1 bathroom – Rent £1150 PCM
Plot 5: 2 Bed 1 bathroom with large terrace and parking – Rent £1400 PCM
Plot 6: 2 Bed 1 bathroom and parking – Rent £1250 PCM
Plot 7: 2 Bed 1 bathroom and parking – Rent £1250 PCM
Plot 8: 3 bed 2 bathroom and parking – Rent £1650
Plot 9: 3 bed 2 bathroom and parking – Rent £1650
Total monthly rent £12550 or £163150 per annum. The rents are a guide – depending on finish and general stock levels these may increase.
Full Appraisal - refer to online legal pack.
For full details of the EPC please refer to the online legal pack.
Please be aware all purchasers are subject to a £1000 + VAT (£1,200 inc VAT) buyer's premium which is ALWAYS payable upon exchange of contracts whether the sale is concluded before, during or after the auction date.
An indication of the seller's current minimum acceptable price at auction. The guide price or range of guide prices is given to assist consumers in deciding whether or not to pursue a purchase. It is usual, but not always the case, that a provisional reserve range is agreed between the seller and the auctioneer at the start of marketing. As the reserve is not fixed at this stage and can be adjusted by the seller at any time up to the day of the auction in the light of interest shown during the marketing period, a guide price is issued. This guide price can be shown in the form of a minimum and maximum price range within which an acceptable sale price (reserve) would fall, or as a single price figure within 10% of which the minimum acceptable price (reserve) would fall. A guide price is different to a reserve price (see separate definition). Both the guide price and the reserve price can be subject to change up to and including the day of the auction.
The seller's minimum acceptable price at auction and the figure below which the auctioneer cannot sell. The reserve price is not disclosed and remains confidential between the seller and the auctioneer. Both the guide price and the reserve price can be subject to change up to and including the day of the auction.
If you would like to arrange a survey or mortgage valuation of this Lot BEFORE the auction please instruct your appointed surveyor to contact Hollis Morgan and we will arrange access for them to inspect the property. Please note that buyers CANNOT attend the surveys and the surveyors are responsible for collecting and returning keys to the Hollis Morgan offices in Clifton.
This property is for sale by public auction and if you intend to bid please bring the following:
Proof of identity (valid passport or photo driving licence).
Proof of address (bank statement, recent utility bill, council tax bill or tenancy agreement).
10% deposit payment.
Buyers premium payment.
Details of your solicitor.
You will need to register to bid – registration will be open from 18:15
Forms can be downloaded and completed beforehand ( found in the legal pack ) or collected at the auction venue.
We can only accept the following at the auction:
Personal or Company Cheque
Bankers Draft
Debit Card ( NOT CREDIT CARD )
If you cannot attend the auction (although we strongly advise you do) you can make a TELEPHONE or PROXY BID. This authorises the auctioneer to bid on your behalf up to a pre-set limit. Forms and relevant conditions are available to download with the online legal pack. A completed form, ID and two cheques (one for the 10% deposit and one for the Buyer's Administration Fee of £1,200) are required by the Auction Department at least two full working days before the auction.
We have short video guides for both buying and selling by Public Auction on the Hollis Morgan Website. If you have any further questions regarding the process please don’t hesitate to contact Auction HQ.
WHY HOLLIS MORGAN?
Hollis Morgan regularly hold the largest property auctions across Bristol and the West Country from our iconic Sale Room in Clifton, since we formed in 2010 we have sold the most £££'s of land and property by Public Auction in the region - EVERY YEAR!
Between 2010 and 2018 we have held 51 auctions, offering 1321 lots and raising over £270k for clients across the region.
Did you know… In 2018 we had the highest % success rate and sold more £££’s of Land and Property by auction than all the other Auctioneers in Bristol & North Somerset combined!
We are very proud of what our past clients have say about us - please visit the Hollis Morgan website to read their testimonials.
Hollis Morgan are supporting Bristol Zoo’s Bear Wood Appeal as our 2019 charity of the year with 5% of each buyers premium being donated.
Bear Wood is an exciting new development due to open in Summer 2019 at Wild Place Project. The exhibit will transport visitors back in time when the woodland was inhabited by European brown bears, Eurasian lynx, European wolves and wolverine, showing the effects of woodland loss on our native animals.
In 2018 we were delighted to be involved in raising £10,000 over 3 events for the “Off The Record” Bristol based mental health charity - www.otrbristol.org.uk
Visit the Charity page of our Website for further details - https://www.hollismorgan.co.uk/charity/
Hollis Morgan endeavour to make our sales details clear, accurate and reliable in line with the Consumer Protection from Unfair Trading Regulations 2008 but they should not be relied on as statements or representations of fact and they do not constitute any part of an offer or contract. All Hollis Morgan references to planning, tenants, boundaries, potential development, tenure etc is to be superseded by the information contained in the legal pack. It should not be assumed that this property has all the necessary Planning, Building Regulation or other consents. Any services, appliances and heating system(s) listed have not been checked or tested. Please note that in some instances the photographs may have been taken using a wide angle lens. The seller does not make any representation or give any warranty in relation to the property and we have no authority to do so on behalf of the seller.
Although these particulars are thought to be materially correct their accuracy cannot be guaranteed and they do not form part of any contract.
Property data and search facilities supplied by www.vebra.com