**Phase 1 of drainage works have started with building regulation sign off** What do we have here? A superb development site with PLANNING for 5 units (Planning reference RVC/22/02084) which includes 2 x pairs of Semi-Detached and 1 x Detached. Located on the corner of Mill Road and Spital Road within walking distance of local amenities including Spital train station only a short walk away.
(Property Ref: na)
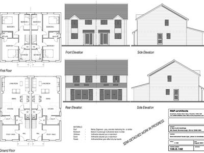
The proposed properties will offer approximately 108 m2 with open plan living, dining and kitchen with utility, downstairs WC and separate snug. Whilst the first floor offers 3 bedrooms, en-suite and family bathroom. All coming with off road parking and gardens to the rear.
The boundary is approx. 31 meters back from Mill Road and runs parallel to Mill Road. There is a lamp post on Spital road which is a close indicator.
Although these particulars are thought to be materially correct their accuracy cannot be guaranteed and they do not form part of any contract.