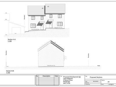
An exciting opportunity to purchase plot 2 Devon Drive set within approx 0.89 of an acre. The plot has full planning permission ( Application Number: 21/0135/PA ) for the erection of two semi-detached 2 storey, 3 bedroom dwellings. The proposed finish of both dwellings will consist of rendered masonary painted, with natural or composite slate roof. There is also planning for two parking spaces per dwelling.
Situated in a highly desirable location on the edge of Pembroke Town, you are only a short drive away from a variety amenities, including local shops, doctors and schools. The plot can either be a great investment for someone looking to build the properties for re-sale or an opportunity to build your own dream home in a popular location.
Pembroke Town is located in the South of Pembrokeshire, approximately 12 miles away from the county town of Haverfordwest. The town is focused around the spectacular medieval castle, built in 1093 and birthplace to Henry VII, which is accompanied by a stunning mill pond and circular walk. The Main Street offers an array of independent businesses, including gift shops, cafe's and grocery stores. The town also has amenities including banks/building societies, doctors and dental surgery, solicitors, public transport links, convenience stores and both a primary and secondary school.
(Property Ref: 17845912)
VIEWING: By appointment only via the Agents.
TENURE: We are advised Freehold
SERVICES: We have not checked or tested any of the services or appliances at the property.
ref: HC / LLE / JAN/ 24
TAKEONOK/LLE/05/01/24
FACEBOOK & TWITTER
Be sure to follow us on Twitter: @ WWProps
https://www.facebook.com/westwalesproperties/