Home
For Sale
To Let
Hastings
Bexhill
Rye
Battle
Northiam
St Leonards
Tenterden
Services
EPC’s
Financial Services
Jobs
User Reviews
Log in
Sign up
Agent details
Rush Witt & Wilson - Hastings
Rother House
Havelock Road
Hastings
East Sussex
TN34 1BP
Tel:
01424 442443
Shortlist
No properties
Silverhill Avenue
Map
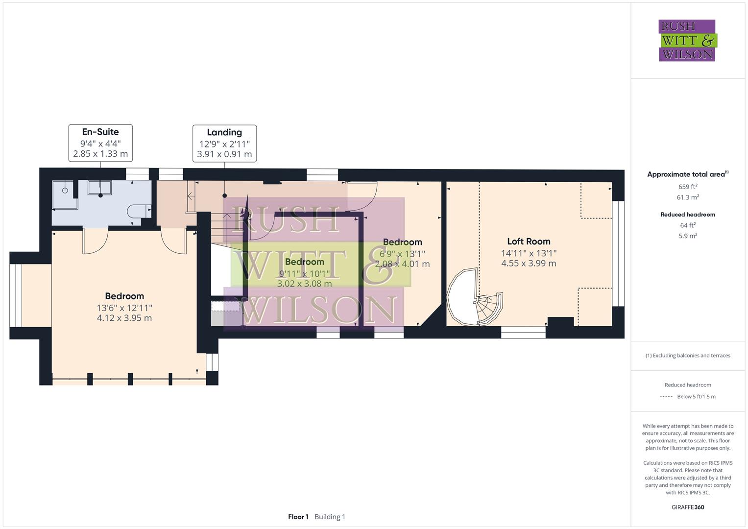
Floorplan
Brochure
Full details
Silverhill Avenue, St. Leonards-On-Sea
£675,000
Property data and search facilities supplied by www.vebra.com