
No properties
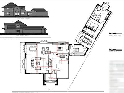
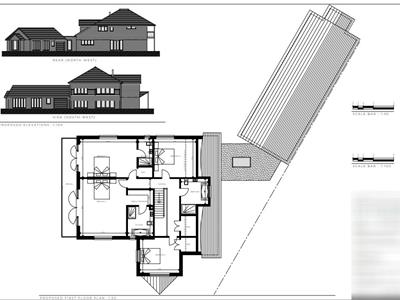
**CHAIN FREE** Rush Witt & Wilson are pleased to present, with no onward chain, a spacious detached chalet bungalow set within a generous private corner plot( approx. 0.22 acres). This property is in need of general modernisation and improvement but boasts a prime location, one of the most desirable in the town. It comes with applied planning permission RR/2025/500/P for a sizable extension, making it a fantastic opportunity for potential buyers. The accommodation includes four bedrooms—three conveniently located on the ground floor and a large bedroom upstairs. The home features a sizable L-shaped lounge/dining room, a ground floor shower room, and two additional WCs. Outside, you'll find a detached double garage, providing ample storage or workshop space. The property currently offers a large roof space, which has been granted planning permission for extensive conversion. This presents an excellent opportunity to create additional living space, along with plans for an annexe integrated with the double garage. Positioned at the corner of Hartfield Road and Beaulieu Road, two of the town’s most sought-after areas, this home is just a few hundred yards from Beaulieu Green beach and approximately half a mile from Cooden Beach railway station, golf course, and hotel. The town centre is less than two miles away, ensuring convenience for shopping and local amenities. This property is an ideal project for those looking to create their dream home in a fantastic location, combining potential with a desirable lifestyle.
(Property Ref: 15758214)
With windows to the front elevation and entrance door.
Single radiator, parquet flooring, understairs storage cupboard.
W.C with low level flush, obscure glass window to side elevation, half height wall tiling.
6.23m x 5.64m (20'5" x 18'6" )Window to the side and rear elevations with French doors, parquet flooring, two single radiators, serving hatch through from kitchen, tiled fireplace.
4.46m x 3.59m (14'7" x 11'9" )Windows to the rear and side elevations, door leads to rear garden. Fitted kitchen comprising a range of base and wall units with laminate worktops, single bowl double drainer stainless steel unit with mixer tap, plumbing for washing machine, plumbing for dishwasher, breakfast bar, integrated double oven and grill, space for fridge/freezer, wall mounted gas central heating and domestic hot water boiler.
4.25m x 3.37m (13'11" x 11'0")Window to the front elevation, single radiator, pedestal wash hand basin, built-in wardrobe cupboard, parquet flooring.
4.61m x 2.1m (15'1" x 6'10" )Window to side elevation, double radiator, parquet flooring.
4.66m x 1.87m (15'3" x 6'1" )Window to the front and side elevations, double radiator, parquet flooring.
Modern suite comprising w.c. with low level flush, chrome heated towel rail, pedestal wash hand basin, walk-in shower cubicle with chrome controls, chrome shower head and opening door, part tiled walls, obscure glass window to the side elevation.
Door with access to eaves storage.
5.77m x 4m (18'11" x 13'1" )Window to the front elevation with sea views and views of the South Down and Eastbourne, single radiator, pedestal wash hand basin, built-in wardrobe cupboards.
Mainly laid to lawn, extensive in size and all enclosed with hedging to all sides and offering private and seclusion and various flower beds which are well stocked with shrubs and flowers of various kinds.
Attractive courtyard with patio areas for alfresco dining, lawned area and enclosed with retaining walls, extends out onto another lawned area which is enclosed with fencing and hedging, a far bar gate gives access to off road parking.
Personal door and window to the side.
None of the services or appliances mentioned in these sale particulars have been tested. It should also be noted that measurements quoted are given for guidance only and are approximate and should not be relied upon for any other purpose.
COUNCIL TAX BAND - E

Although these particulars are thought to be materially correct their accuracy cannot be guaranteed and they do not form part of any contract.
Property data and search facilities supplied by www.vebra.com