
No properties
LAND AND BUILDING WITH POTENTIAL
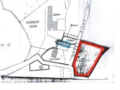
Rush Witt & Wilson are pleased to offer the rare opportunity to acquire a parcel of land, measuring approx. 48m by 47m narrowing to 27m. in a semi rural setting and only a short walk from the beach.
A level plot with a variety of trees and timber building.
For further information and to arrange a viewing please contact our Rye Office 01797 224000
(Property Ref: 18209474)
The land is located at the western end of Morlais Ridge, an unmade lane bordered by protected land which is controlled by the Morlais Ridge Trust.
Footpaths lead via a nature reserve to the beach which forms part of the stunning coastline of the Rye Bay. Miles of open shingle beach extend from the cliffs at Fairlight to the estuary at Rye Harbour.
The village offers a range of daily amenities including a supermarket with post office, fish / game shop, public house, a selection of takeaways and The Ship, a pub / restaurant with in house butchery / delicatessen.
The ancient towns of Rye and Winchelsea are only a short drive away as is the historic coastal town of Hastings.
A parcel of land measuring approx 48m wide by 47m narrowing to 27m deep.
There re a variety of mature trees and shrubs
There is a timber building measuring approx. 6m x 4m
The plot is being sold as is, interested parties should make their own enquiries regarding specific uses and planning requirements.
The land is situated within a SSSI area (Sites of Special Scientific Interest)
Please contact our Rye Office 01797 224000 to arrange access.
These particulars are produced in good faith, but are intended to be a general guide only and do not constitute any part of an offer or contract. It should not be assumed that the property has all necessary planning, building regulation or other consents. None of the services or appliances mentioned in these sale particulars have been tested.
Rush Witt & Wilson advise all prospective purchasers should satisfy themselves by full inspection, survey, searches/enquiries and professional advice about all relevant aspects of the property. The text, photographs and floor plans are for guidance only and the measurements quoted are approximate and should not be relied upon for any other purpose.
Although these particulars are thought to be materially correct their accuracy cannot be guaranteed and they do not form part of any contract.
Property data and search facilities supplied by www.vebra.com