
No properties
BUILDING PLOT WITH STUNNING VIEWS
Rush Witt & Wilson are pleased to offer the opportunity to acquire a building plot that occupies an elevated position on the outskirts of Rye.
Outline planning permission was granted RR/2023/2503/P for the erection of a single dwelling and subsequently reserved matters RR/ 2024/731/P.
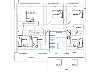
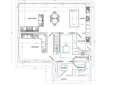
The proposed dwelling would comprise open plan kitchen/dining area/family space, living room, home office, shower room and utility room. Four bedrooms, one with en-suite, a family bathroom and wet room.
There would be parking for several cars and good size garden.
For further information and to arrange a viewing please contact our Rye Office 01797 224000.
(Property Ref: 18231875)
The site forms part of Old School Place a small development at the end of a quiet cul de sac towards the outskirts of Rye.
Rye offers a range of daily amenities including a supermarket, many specialist and general retail stores as well as a fine selection of public houses and restaurants.
There is a primary and secondary school, weekly general market and a sports centre with indoor swimming pool.
The railway station offers regular services to the city of Brighton in the West and to Ashford where there are connecting, high speed, services to London.
A gently sloping site enjoying a southerly aspect and far reaching views over Rye and countryside to the sea.
Access is via a shared private drive.
Permission has been granted for the erection of a single dwelling as below -
RR/2023/2503/POld School Place - Land to the South of, Rye ForeignApplication for outline permission with all matters reserved for the erection of a single dwelling. APPROVED CONDITIONAL.
RR/2024/731/POld School Place - Land to the South of, Rye Foreign TN3Reserved matters relating to access; appearance; landscaping; layout and scale pursuant to outline permission RR/2023/2503/P for the erection of 1 dwelling.APPROVED CONDITIONAL.
We are advised that the site contains an area of unregistered land and that our client / their solicitor will deal with the necessary legalities.
There is a further area of land adjoining the site and it is proposed to pursue planning on this too, details available on request.
Although these particulars are thought to be materially correct their accuracy cannot be guaranteed and they do not form part of any contract.
Property data and search facilities supplied by www.vebra.com