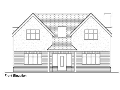
ShortlistNo properties Huncote Road, Croft£450,000![]() To arrange a viewing or for more details contact the Market Bosworth Sales office or call 01455 890898 Land - Building Plot**Exceptional Building Plot in idyllic Setting **Approx 0.46 acres including additional Outbuilding **Wonderful Country Views **Detailed Planning Consent for stylish Country House with Double Garage** (Property Ref: 19681002) GENERALIt is rare for a building plot in such an idyllic location to come to the market. The plot which extends to approximately 0.35 of an acres (0.14 hectares) is located in the grounds of Netherby House on the edge of Croft. The plot is an elevated position with superb country views and full detailed planning consent has recently been secured for a stylish country house, extending to approximately 2080 square feet (193.5m2) with a detached double garage. LOCATIONThe building plot is located on the edge of Croft, a popular village approximately 9 miles south west of Leicester City centre. There are a good range of amenities in the village including shops and a primary school. Croft is exceptionally well located for access to the motorway network via Junction 21 on the M1 (8 miles) and there are fast train services to London. It should be noted at Junction 21 you will find Fosse Park, which is considered to be one of the best shopping centres in the Midlands. PLANNING PERMISSIONPlanning permission (23/0476/FUL) was granted on appeal on the 26 April 2024 for the erection of a two storey detached dwelling and detached garage to the south of Netherby House Consent has subsequently been amended on 10 February 2025 with an improved access being secured. VIEWINGSViewings are striclty by appointment with the Agent. All enquiries should be directed to Anthony Fox - anthony@foxcountryproperties.co.uk. SERVICESWe understand that mains water and electricity are available to be connected to the site. The purchaser will be responsible for checking the location and adequacy of these services. IMPORTANT NOTEIt is essential that interested parties are fully aware of all the conditions in the Consent before making an offer. Copies of the Planning Consent are available from the Agent or can be accessed on the Blaby District Council website. Although these particulars are thought to be materially correct their accuracy cannot be guaranteed and they do not form part of any contract. Property data and search facilities supplied by www.vebra.com |
|||||||||||||||