Freephone: 0800 028 4776
Shortlist
No properties
Old School Close, Highfield, Rowlands GillGuide Price £65,000
Land - Building Plot
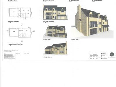
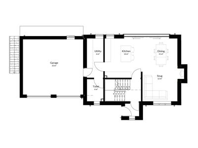
An individual building plot available with planning permission approved for a large four bedroom
detached house with a double garage, situated on the Old School Close development at Highfield,
Rowlands Gill. This particular plot is the largest design on the estate being three-storey to the rear, built into the hillside and having views.
Old School Close is a superb new development of 13, three & four bedroomed detached houses,
situated on the outskirts of Rowlands Gill.
All the properties are to be built in stone and have good size plots.
Rowlands Gill has good village facilities including shops, a Tesco supermarket and Gibside Hall and
grounds. Nearby High Spen offers further village amenities including a butcher’s shop, a farm shop, a
renowned tea room and a primary school. There is a local bus route to Newcastle and the Metro Centre (within 10 miles and 7 miles respectively), beautiful surrounding countryside and attractions that include Chopwell Woods, Garesfield Golf Club and the picturesque Derwent Walk – an area renowned for the majestic Red Kites. It is approximately 8 miles from Consett, 11 Miles from Newcastle and 17 miles from Durham.
Property details provided by JW Wood
EPC rating: to be advised
Council Tax Band: to be advised
Tenure: Freehold
For Sale By Auction www.agentspropertyauction.com LIVE ONLINE AUCTION 31st March 2026 OPTION 1
(Property Ref: 19654090)
Disclaimer 1
The Agents Property Auction have not inspected this property. The property details have been supplied by JWW. None of the services have been tested. Measurements, where given, are approximate and for descriptive purposes only. Boundaries cannot be guaranteed and must be checked by solicitors prior to exchanging contracts. The details are provided in good faith, are set out as a general guide only and do not constitute any part of a contract. No member of staff has any authority to make or give representation or warranty in relation to this property.
For sale by auction see www.agentspropertyauction.com
Disclaimer 2
Each auction property is offered at a guide price and is also subject to a reserve price. The guide price is the level where the bidding will commence. The reserve price is the sellers minimum acceptable price at auction and the figure below which the auctioneer cannot sell. The reserve price, which may be up to 10% higher than the guide price, is not disclosed and remains confidential between the seller and the auctioneer. Both the guide price and the reserve price can be subject to change up to and including the day of the auction. The successful buyer pays a £2000+vat (total £2400) Auction Administration Fee. At your request we can refer you to a North East based Solicitor from our panel. It is your decision whether you choose to deal with them, should you decide to use them you should know that we would receive a referral fee of £180 including Vat from them for the recommendation.
Disclaimer 3
A copy of the title is available upon request, we recommend all potential buyers take legal advice, satisfy their requirements on all matters and have finance in place prior to purchase.
Details awaiting vendors approval.
Disclaimer 3
A copy of the title is available upon request, we recommend all potential buyers take legal advice, satisfy their requirements on all matters and have finance in place prior to purchase.
Details awaiting vendors approval.
Disclaimer 4
We are advised by the seller that the property has mains provided gas, electricity, water and sewerage.
Ofcom website states no broadband download speed at this postcode: NE39 2DX and mobile coverage is provided by EE (good outdoor and variable indoor), Three (good outdoor and variable indoor), 02 (good) and Vodaphone (good).
Although these particulars are thought to be materially correct their accuracy cannot be guaranteed and they do not form part of any contract.
Property data and search facilities supplied by www.vebra.com












